●マンション経営の頼れるパートナー。TFDエステート

TFD Estate - 株式会社TFDエステート

物件詳細

エルデンシア南大泉 105号室 練馬区南大泉[マンション]

エルデンシア南大泉 105号室 練馬区南大泉[マンション]の物件詳細ページです。

物件種別:マンション

お問い合わせ番号:00001436_105

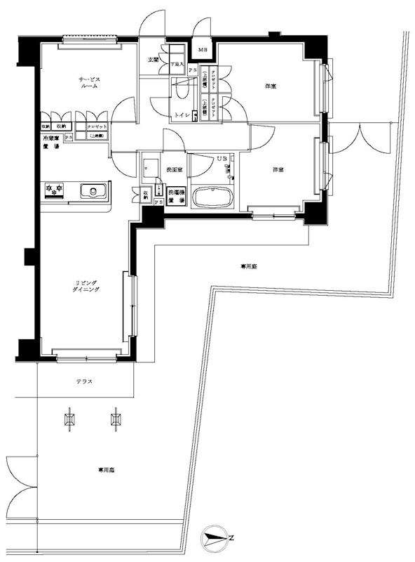
間取り(面積)

2SLDK

(67.65㎡)

賃料(管理費等)

18.0万円

(20000円)

交通:西武新宿線
武蔵関駅 バス- 徒歩14分

敷金/礼金:-/1ヶ月

保証金/敷引/償却金:-/-/-

所在地:練馬区南大泉

築年月:2011年12月

ポイント

タイル貼り分譲賃貸 室内洗濯機置場 TVモニター付インターホン バス・トイレ別 三面鏡タイプ独立洗面台 浴室乾燥機 食器洗い乾燥機 宅配ボックス リビング・ダイニングに電気式床暖房

資料請求・お問合せ

TEL:03-3584-2666

お問い合わせ番号:00001436_105

詳細はこちら

資料請求・お問合せ

TEL:03-3584-2666

お問い合わせ番号:00001436_105

セールスポイント

特徴 防犯カメラ,外壁タイル張り,分譲タイプ,オートロック,モニタ付オートロック,ダブルロック,ディンプルキー,24時間緊急通報システム,管理形態(巡回)
設備 エレベーター,24時間ゴミ出し可,敷地内ゴミ置き場,宅配BOX,カウンターキッチン,ガスコンロ設置済,2口コンロ,グリル,食器洗浄乾燥機,キッチン床暖房,食器乾燥機,バス・トイレ別,ユニットバス,バス有,オートバス,追い焚き風呂,浴室乾燥,シャワー,トイレ有,温水洗浄便座,洗面台,洗面所独立,三面鏡付洗面化粧台,エアコン,照明付き,BS,CS,光ファイバー,TVインターホン,ガス給湯,24時間換気システム,フローリング,室内洗濯機置場,クローゼット,シューズボックス,収納有,ガス(都市ガス),下水(公共下水),水道(専用メーター),電気
光ファイバー
エレベーター 1基
空調 1基
部屋外設備 テラス,専用庭
駐車場 駐車場:無 駐輪場:有

物件概要

物件名 エルデンシア南大泉 105号室
物件所在地 東京都練馬区南大泉1丁目17-8 周辺地図
交通機関 西武新宿線 武蔵関駅 徒歩14分
間取り詳細 洋室(5.4畳) 洋室(5.7畳) 洋室(4.9畳) LDK(10.8畳)
専有面積 67.65㎡
所在階/階数 1/7
部屋向き
建物構造 鉄筋コンクリート
築年月 2011年12月
総戸数 66
賃料 18.0万円
管理費等 20000円
礼金 1ヶ月
その他一時金 TFDclub:20,000円 鍵交換費用:27,500円 ルームクリーニング費用(退去時):88,000円
損害保険 有 損保名称:全管協少額短期保険株式会社 料金:20000円 損保期間:24ヶ月 
契約形態 普通借家契約
保証会社 必須 初回保証料30%(家賃+管理費)年間保証料10,000円 ※学生初回保証料9,000円(学生契約可能)
保証人代行 必須
法人契約
現況 退去予定
入居時期 期日指定 2026年6月中旬
入居条件 ペット(可),子供(可),二人(可),法人(可)

その他

取引態様 代理
自社管理番号 00001436_105
情報更新日 2026年3月28日
次回更新予定日 2026年4月27日
不動産会社コード 50015
物件管理コード 5698012213
  • ※間取りの「S」はサービスルーム(納戸)です。
  • ※QRコードは(株)デンソーウェーブの登録商標です。

詳細はこちら

資料請求・お問合せ

TEL:03-3584-2666

お問い合わせ番号:00001436_105

お問い合わせ先:株式会社TFDエステート

所在地 : 東京都港区赤坂4丁目2-6
TEL : 03-3584-2666
免許番号 : 東京都知事(4)第90794号

この部屋を見学予約

ホームへ戻る