●マンション経営の頼れるパートナー。TFDエステート

TFD Estate - 株式会社TFDエステート

物件詳細

ルーブル仲六郷壱番館 403号室 大田区仲六郷[マンション]

ルーブル仲六郷壱番館 403号室 大田区仲六郷[マンション]の物件詳細ページです。

物件種別:マンション

お問い合わせ番号:00001483_403

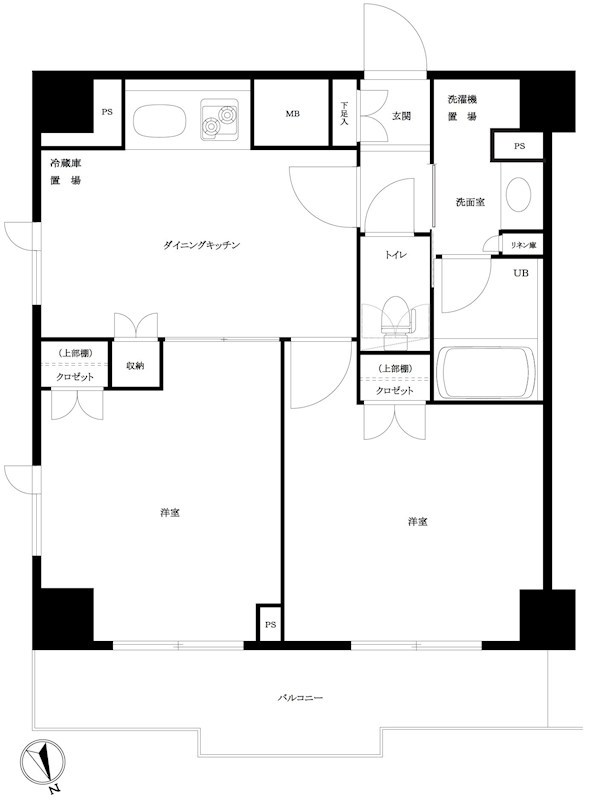
間取り(面積)

2DK

(42.47㎡)

賃料(管理費等)

14.9万円

(11000円)

交通:京急本線
六郷土手駅 バス- 徒歩2分

敷金/礼金:-/1ヶ月

保証金/敷引/償却金:-/-/-

所在地:大田区仲六郷

築年月:2014年3月

ポイント

 

資料請求・お問合せ

TEL:03-3584-2666

お問い合わせ番号:00001483_403

詳細はこちら

資料請求・お問合せ

TEL:03-3584-2666

お問い合わせ番号:00001483_403

セールスポイント

特徴 外壁タイル張り,分譲タイプ,2F以上,オートロック,モニタ付オートロック,ダブルロック,ディンプルキー,角住戸,管理形態(巡回)
設備 エレベーター,24時間ゴミ出し可,敷地内ゴミ置き場,宅配BOX,システムキッチン,ガスコンロ設置済,2口コンロ,バス・トイレ別,ユニットバス,浴室乾燥,シャワー,トイレ有,温水洗浄便座,洗面台,洗面所独立,エアコン,照明付き,BS,CS,光ファイバー,TVインターホン,24時間換気システム,フローリング,室内洗濯機置場,クローゼット,ガス(都市ガス),下水(公共下水),水道(専用メーター),電気
光ファイバー
エレベーター 1基
空調 1基
駐車場 駐輪場:有

物件概要

物件名 ルーブル仲六郷壱番館 403号室
物件所在地 東京都大田区仲六郷4丁目31-2 周辺地図
交通機関 京急本線 六郷土手駅 徒歩2分
間取り詳細 洋室(6畳) K(7畳) 洋室(6畳)
専有面積 42.47㎡
所在階/階数 4/8
部屋向き 北東
建物構造 鉄筋コンクリート
築年月 2014年3月
総戸数 81
賃料 14.9万円
管理費等 11000円
礼金 1ヶ月
その他一時金 鍵交換費用:27,500円 TFDclub:20,000円 ルームクリーニング費用(退去時):66,000円
損害保険 有 損保名称:全管協少額短期保険株式会社 料金:20000円 損保期間:24ヶ月 
契約形態 普通借家契約
保証会社 必須 初回保証料30%(家賃+管理費)年間保証料10,000円 ※学生初回保証料9,000円(学生契約可能)
保証人代行 必須
現況 退去予定
入居時期 期日指定 2026年5月上旬

その他

取引態様 代理
自社管理番号 00001483_403
情報更新日 2026年3月3日
次回更新予定日 2026年4月2日
不動産会社コード 50015
物件管理コード 100000001681978
  • ※間取りの「S」はサービスルーム(納戸)です。
  • ※QRコードは(株)デンソーウェーブの登録商標です。

詳細はこちら

資料請求・お問合せ

TEL:03-3584-2666

お問い合わせ番号:00001483_403

お問い合わせ先:株式会社TFDエステート

所在地 : 東京都港区赤坂4丁目2-6
TEL : 03-3584-2666
免許番号 : 東京都知事(4)第90794号

この部屋を見学予約

ホームへ戻る