●マンション経営の頼れるパートナー。TFDエステート

TFD Estate - 株式会社TFDエステート

物件詳細

ルーブル川崎中丸子 611号室 川崎市中原区中丸子[マンション]

ルーブル川崎中丸子 611号室 川崎市中原区中丸子[マンション]の物件詳細ページです。

物件種別:マンション

お問い合わせ番号:00001470_611

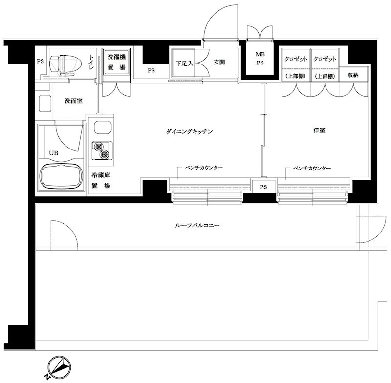
間取り(面積)

1DK

(32.34㎡)

賃料(管理費等)

12.5万円

(13750円)

交通:横須賀線
武蔵小杉駅 バス- 徒歩13分

敷金/礼金:-/1.5ヶ月

保証金/敷引/償却金:-/-/-

所在地:川崎市中原区中丸子

築年月:2013年9月

ポイント

 

資料請求・お問合せ

TEL:03-3584-2666

お問い合わせ番号:00001470_611

詳細はこちら

資料請求・お問合せ

TEL:03-3584-2666

お問い合わせ番号:00001470_611

セールスポイント

特徴 外壁タイル張り,分譲タイプ,2F以上,オートロック,モニタ付オートロック,ダブルロック,ダブルディンプルキー,管理形態(巡回)
設備 エレベーター,24時間ゴミ出し可,敷地内ゴミ置き場,宅配BOX,システムキッチン,ガスコンロ設置済,2口コンロ,バス・トイレ別,ユニットバス,バス有,浴室乾燥,シャワー,トイレ有,温水洗浄便座,洗面台,洗面所独立,エアコン,照明付き,BS,CS,光ファイバー,TVインターホン,ガス給湯,24時間換気システム,フローリング,クローゼット,シューズボックス,ガス(都市ガス),下水(公共下水),水道(専用メーター),電気
光ファイバー
エレベーター 1基
空調 1基
駐車場 駐輪場:有

物件概要

物件名 ルーブル川崎中丸子 611号室
物件所在地 神奈川県川崎市中原区中丸子366-1 周辺地図
交通機関 横須賀線 武蔵小杉駅 徒歩13分
南武線 向河原駅 徒歩8分
間取り詳細 洋室(4畳) DK(7畳)
専有面積 32.34㎡
所在階/階数 6/7
部屋向き 北西
建物構造 鉄筋コンクリート
築年月 2013年9月
総戸数 98
賃料 12.5万円
管理費等 13750円
礼金 1.5ヶ月
その他一時金 TFDclub:20,000円 鍵交換費用:27,500円 ルームクリーニング費用(退去時):66,000円
損害保険 有 損保名称:全管協少額短期保険株式会社 料金:20000円 損保期間:24ヶ月 
契約形態 普通借家契約
保証会社 必須 初回保証料30%(家賃+管理費)年間保証料10,000円 ※学生初回保証料9,000円(学生契約可能)
保証人代行 必須
現況 退去予定
入居時期 期日指定 2026年5月下旬

その他

取引態様 代理
自社管理番号 00001470_611
情報更新日 2026年4月9日
次回更新予定日 2026年5月9日
不動産会社コード 50015
物件管理コード 100000000634008
  • ※間取りの「S」はサービスルーム(納戸)です。
  • ※QRコードは(株)デンソーウェーブの登録商標です。

詳細はこちら

資料請求・お問合せ

TEL:03-3584-2666

お問い合わせ番号:00001470_611

お問い合わせ先:株式会社TFDエステート

所在地 : 東京都港区赤坂4丁目2-6
TEL : 03-3584-2666
免許番号 : 東京都知事(4)第90794号

この部屋を見学予約

ホームへ戻る